- HOME >
- リノベーション施工事例 >
- セカンドライフを楽しむ
セカンドライフを楽しむ
| お名前・住所 | 福岡県春日市 | 種別 | マンション | |
|---|---|---|---|---|
| 費用 | 1800万円 | 工期 | 3か月 | |
| リフォーム内容 | セカンドライフリノベーション | |||
お客様より
同居していた子供3人が社会人となり家を出たのを機に夫婦二人のセカンドライフを楽しむ空間創造のリノベーションをお願いしました。
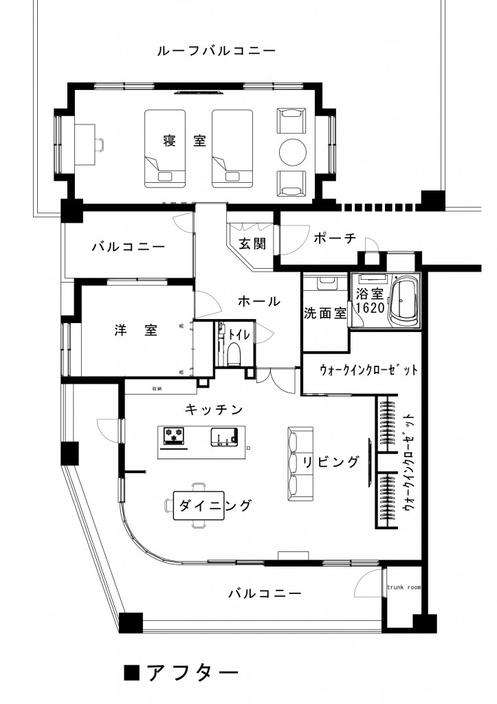
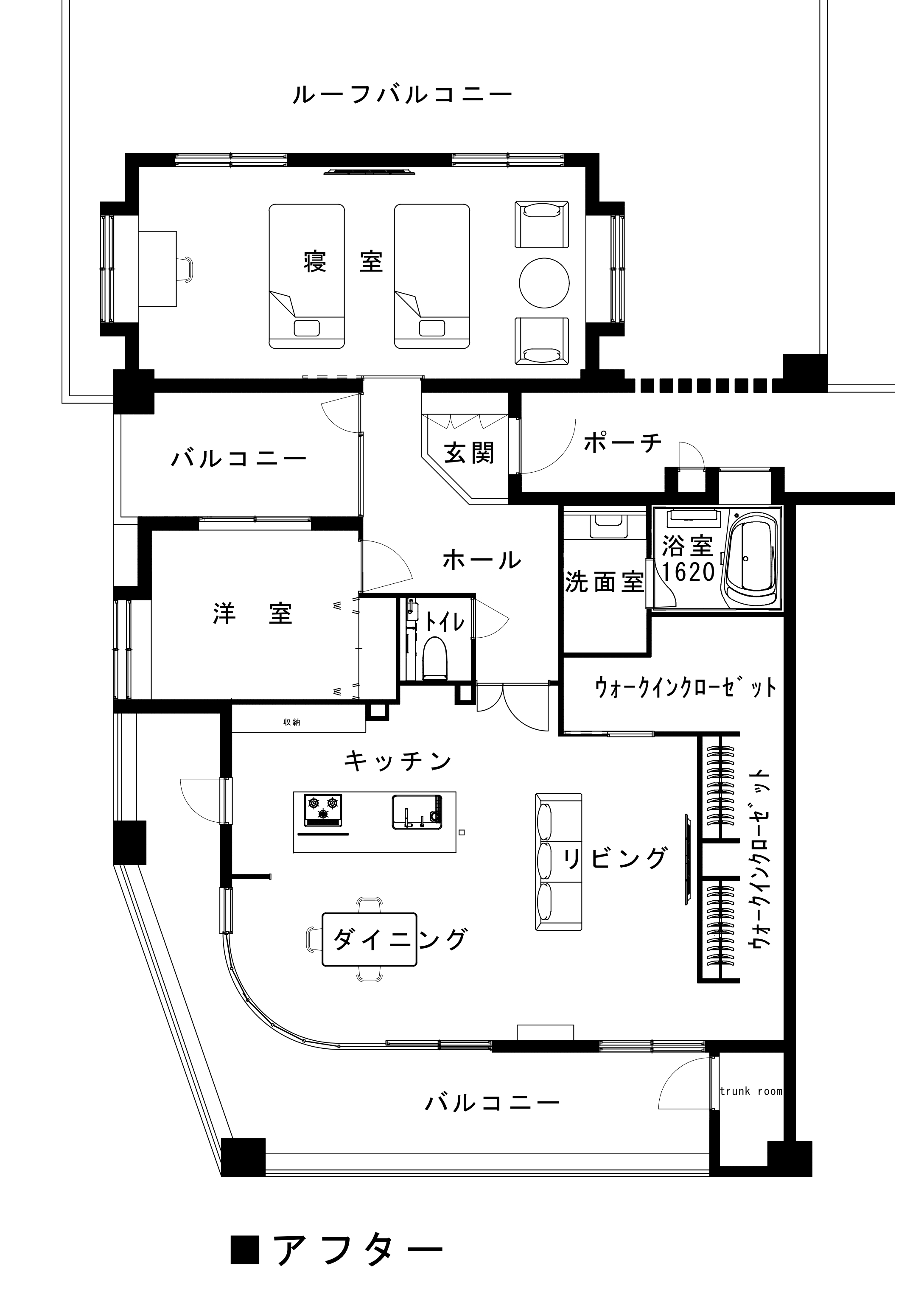
After
【キッチン:アフター】
施工後のキッチン(TOTO:ザ・クラッソ)
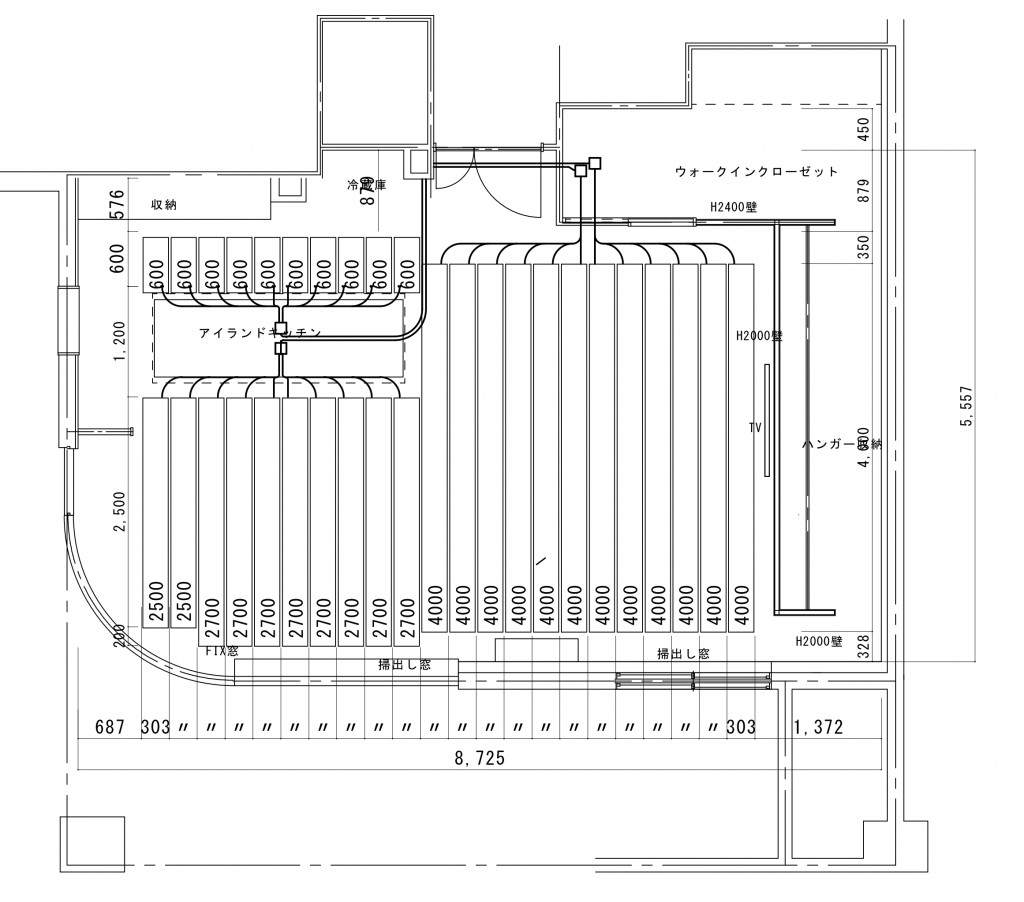
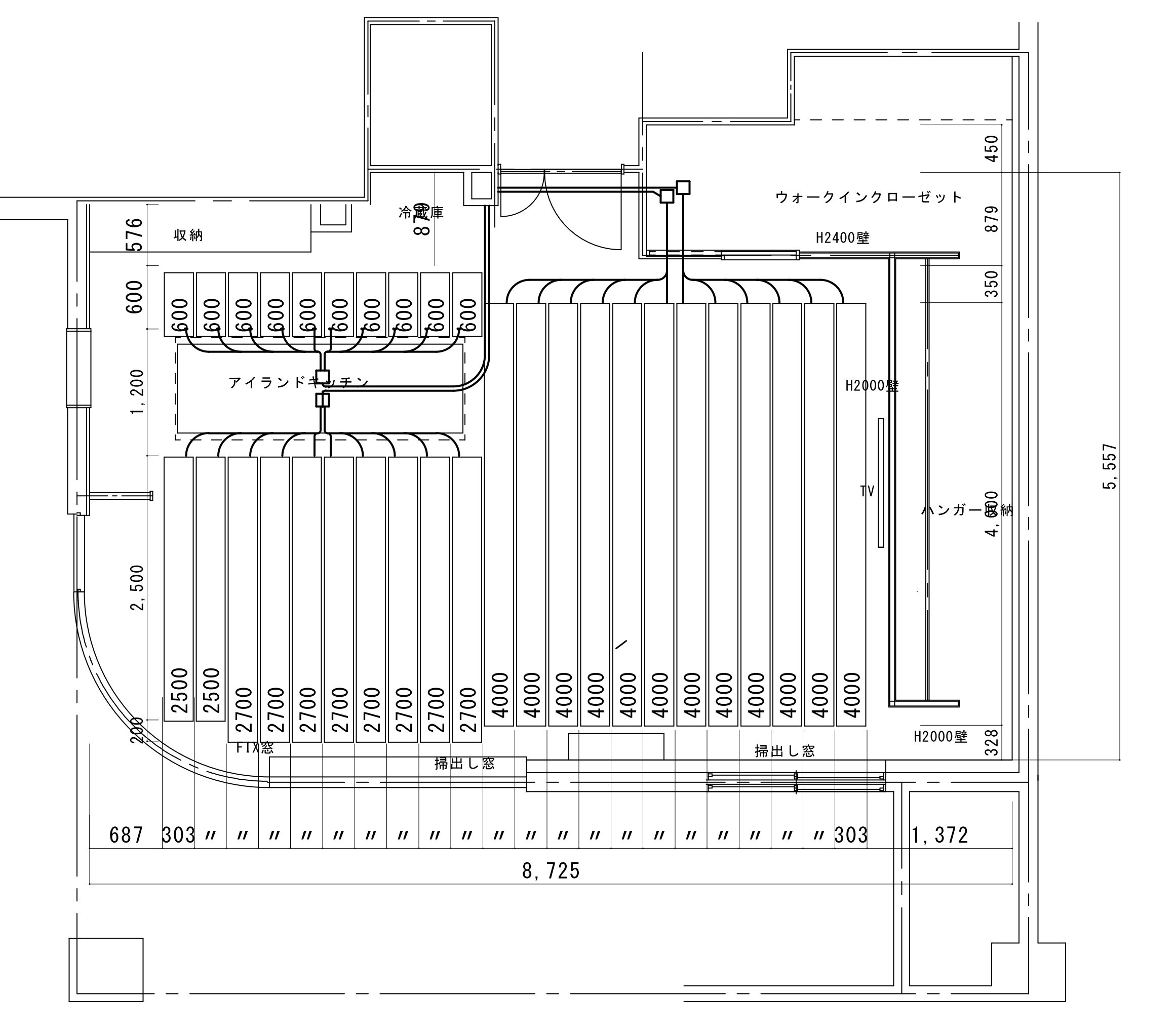
回遊性のあるアイランドキッチンに取替えました。
TOTOホームページへ https://jp.toto.com/products/kitchen/
【トイレ:アフター】
施工後のトイレ(TOTO:ネオレスト)
TOTOホームページへ https://jp.toto.com/products/toilet/
壁には調湿、脱臭、有害物質低減機能のエコカラットを取り付けました。
間接照明でエコカラットが浮き上がって見えます。
LIXILホームページへ https://www.lixil.co.jp/lineup/tile/ecocarat/
担当者より























































